埼玉県の【貸倉庫・貸工場】の検索結果

埼玉県は、東部地区(春日部市、加須市、北葛飾郡、行田市、久喜市、越谷市、幸手市、白岡市、草加市、蓮田市、羽生市、松伏町、三郷市、南埼玉郡、八潮市、吉川市)中央地区(上尾市、北足立郡、桶川市、川口市、北本市、鴻巣市、さいたま市、戸田市、蕨市)西部地区(朝霞市、入間市、入間郡、川越市、坂戸市、狭山市、志木市、鶴ヶ島市、所沢市、新座市、飯能市、東松山市、、比企郡、日高市、ふじみ野市、富士見市、和光市)北部地区(大里郡、児玉郡、深谷市、熊谷市、本庄市)秩父地区(秩父市、小鹿野町、長瀞町、皆野町、横瀬町)の5エリアに分けられます。 東京・千葉・茨城・栃木・群馬に接しており、物流拠点として採用している企業が多く、倉庫・工場も1都3県に比べると一番多い県です。特に人気のエリアは、外環周辺のエリアです。都内と接し、他県への移動もしやすいエリアなので、人気が高く、賃料相場も近年は上がり続けているエリアです。 賃料相場も1都3県の中では千葉県と同じくらいの坪単価です。 東部地区 三郷、八潮、草加、越谷平屋タイプの物件が多い 中央地区 川口人気の為坪単価が高い 西部地区 狭山、新座、所沢に大型物流倉庫あり 北部地区 敷地が広い物件が多め 秩父地区 山が多いため物件少ない

もっと見る
物件検索
並び順
1823件中 1〜30件を表示
貸倉庫

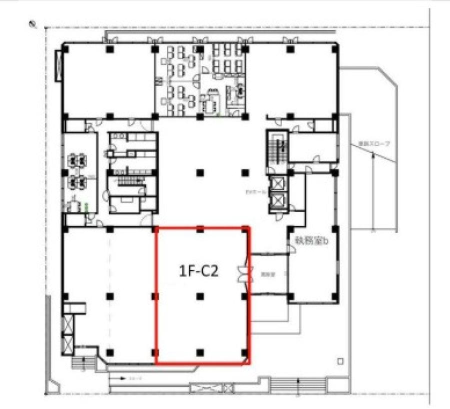
萩原倉庫

☆貴重な準工業地域物件!☆国道254号線至近!!!

駐車場有 準工業・工業・工業専用地域
所在地
埼玉県川越市 大字南田島757-1
交 通
  • JR川越線 南古谷 徒歩17分
  • 関越自動車道 川越 5.8Km
賃 料
22.00 万円
坪単価
3,989円
坪 数
55.15坪
築 年
1982年01月築
詳細を見る
貸倉庫作業所

大野原貸工場・倉庫・作業所

どんな業種もご相談ください!!

駐車場有 トイレ(流し)付き 平屋建 高速道路ICから5km
所在地
埼玉県川越市 大字下赤坂715-1
交 通
  • 東武東上線 上福岡 4400m
  • 関越自動車道 三芳スマート 4.8Km
賃 料
75.00 万円
坪単価
3,948円
坪 数
189.95坪
築 年
1969年03月築
詳細を見る
貸工場

川口江戸1丁目 工場

ホイスト3基(1基不良)付の工場物件です!

クレーン付き 事務所付き トイレ(流し)付き 準工業・工業・工業専用地域
所在地
埼玉県川口市 江戸1-9-4
交 通
  • 埼玉高速鉄道 南鳩ヶ谷 徒歩26分
賃 料
71.50 万円
坪単価
7,187円
坪 数
99.48坪
築 年
1979年01月築
詳細を見る
貸倉庫事務所

小沼倉庫・事務所

坂戸ICより700m 大型倉庫!!

駐車場有 トイレ(流し)付き 動力付き 大型車両出入可能 前面道路6m以上 天井高5m以上 シャッター高3m以上 平屋建 高速道路ICから5km
所在地
埼玉県坂戸市 大字小沼876-8
交 通
  • 東武東上線 若葉 4500m
  • 首都圏中央連絡自動車道 坂戸 0.7Km
賃 料
62.10 万円
坪単価
1,142円
坪 数
543.66坪
築 年
2002年06月築
詳細を見る
貸倉庫

三郷市新和3丁目400坪倉庫

「三郷南」ICより約1.6km 「三郷中央」駅より約1.9km

トイレ(流し)付き 高速道路ICから5km
所在地
埼玉県三郷市 新和3-322
交 通
  • つくばエクスプレス 三郷中央 徒歩19分
  • 東京外環自動車道 三郷南 1.6Km
賃 料
184.80 万円
坪単価
4,612円
坪 数
400.70坪
築 年
1989年10月築
詳細を見る
貸倉庫店舗事務所

堀の内町貸店舗・事務所

1階  屋内駐車場あり! 業種相談!

駐車場有 トイレ(流し)付き
所在地
埼玉県さいたま市大宮区 堀の内町2-108
交 通
  • JR京浜東北・根岸線 大宮 徒歩20分
  • 鹿島橋 徒歩3分
賃 料
18.00 万円
坪単価
5,984円
坪 数
30.08坪
築 年
1980年07月築
詳細を見る
貸倉庫事務所

越ヶ谷事務所1階

短期使用に最適な事務所物件です!

駐車場有 トイレ(流し)付き 前面道路6m以上 駅徒歩15分以内
所在地
埼玉県越谷市 越ヶ谷2-9-15
交 通
  • 東武伊勢崎・大師線 越谷 徒歩8分
賃 料
21.34 万円
坪単価
9,939円
坪 数
21.47坪
築 年
2007年10月築
詳細を見る
貸倉庫

山岡倉庫B

東京外環道至近で、交通利便性が良い!保管倉庫・軽作業場として最適!

駐車場有 トイレ(流し)付き 動力付き 前面道路6m以上
所在地
埼玉県川口市 大字神戸26-2
交 通
  • 埼玉高速鉄道 新井宿 徒歩22分
賃 料
16.50 万円
坪単価
3,712円
坪 数
44.45坪
築 年
1980年01月築
詳細を見る
貸倉庫事務所

タカラビル 1FB

営業所や事務所等に最適!

駐車場有 トイレ(流し)付き 駅徒歩15分以内
所在地
埼玉県さいたま市大宮区 吉敷町1-89-1
交 通
  • JR京浜東北・根岸線 大宮 徒歩8分
賃 料
35.20 万円
坪単価
17,565円
坪 数
20.04坪
築 年
1999年09月築
詳細を見る
貸倉庫事務所

大里ビル101

☆駅から徒歩1分の好立地 ☆商業地域 ☆前テナント 塾

駐車場有 トイレ(流し)付き 駅徒歩15分以内
所在地
埼玉県深谷市 西島町2-10-3
交 通
  • JR高崎線 深谷 徒歩1分
賃 料
23.10 万円
坪単価
8,824円
坪 数
26.18坪
築 年
1988年05月築
詳細を見る
貸倉庫店舗事務所

渡部ビル1階店舗事務所

ゆとりある広さを確保! 周辺環境充実、駅近!

トイレ(流し)付き 駅徒歩15分以内
所在地
埼玉県新座市 新堀2-16-19
交 通
  • 西武池袋 ·豊島線 清瀬 徒歩4分
賃 料
19.00 万円
坪単価
7,838円
坪 数
24.24坪
築 年
1970年08月築
詳細を見る
貸倉庫事務所

西川口6丁目事務所1

事務所などに最適

トイレ(流し)付き 駅徒歩15分以内
所在地
埼玉県川口市 西川口6
交 通
  • JR京浜東北・根岸線 西川口 徒歩10分
賃 料
15.00 万円
坪単価
4,478円
坪 数
33.50坪
築 年
1981年12月築
詳細を見る
貸倉庫

高倉熊野前貸倉庫

新築20t・2.8t天井クレーン付き倉庫  複数ICよりアクセス良好

クレーン付き 事務所付き トイレ(流し)付き 大型車両出入可能 天井高5m以上 シャッター高3m以上 平屋建
所在地
埼玉県鶴ヶ島市 大字高倉1092-1
交 通
  • 東武越生線 一本松 2200m
  • 圏央道 鶴ヶ島 3.0Km
賃 料
558.66 万円
坪単価
12,327円
坪 数
453.20坪
築 年
2026年10月築
詳細を見る
貸倉庫

下唐子貸倉庫

2026年2月完成予定の新築倉庫物件です!

高速道路ICから5km
所在地
埼玉県東松山市 大字下唐子1513
交 通
  • 東武東上線 つきのわ 2880m
  • 関越自動車道 東松山 2.3Km
賃 料
29.70 万円
坪単価
3,294円
坪 数
90.16坪
築 年
2026年02月築
詳細を見る
貸倉庫事務所

堀兼事務所兼駐車場

運送会社様・資材置き場・広い駐車場をお探しのお客様にマッチする物件です!

駐車場有 事務所付き トイレ(流し)付き 駐車場5台以上 前面道路6m以上 平屋建
所在地
埼玉県狭山市 大字堀兼264
交 通
  • 西武新宿線 新狭山 2880m
賃 料
20.00 万円
坪単価
66,007円
坪 数
3.03坪
築 年
2008年10月築
詳細を見る
貸倉庫

野村工場

敷地内駐車スペース有り(無料)の貸工場物件!

駐車場有 トイレ(流し)付き
所在地
埼玉県入間市 宮寺445-12
交 通
  • 西武池袋線 小手指 6400m
賃 料
27.50 万円
坪単価
2,847円
坪 数
96.58坪
築 年
1992年09月築
詳細を見る
貸倉庫

増田倉庫

坪単価の安い貸倉庫物件 以前は車両の保管倉庫として使用されていました

平屋建
所在地
埼玉県北葛飾郡松伏町 大字大川戸586-2
交 通
賃 料
31.90 万円
坪単価
3,528円
坪 数
90.41坪
築 年
1997年3月築
詳細を見る
貸倉庫

ジュネスC B区画

安川通り沿いの好立地物件です  バス停至近です

駐車場有 トイレ(流し)付き
所在地
埼玉県入間市 東町7-2-8
交 通
  • 西武池袋・豊島線 武蔵藤沢 徒歩18分
  • 藤沢中学校 徒歩1分
賃 料
19.80 万円
坪単価
9,402円
坪 数
21.06坪
築 年
1988年05月築
詳細を見る
貸倉庫
トイレ(流し)付き 前面道路6m以上 平屋建 準工業・工業・工業専用地域
所在地
埼玉県川口市 江戸2-17-8
交 通
  • 埼玉高速鉄道 南鳩ヶ谷 徒歩22分
  • 江戸二丁目 徒歩5分
賃 料
22.00 万円
坪単価
7,333円
坪 数
30.00坪
築 年
1988年03月築
詳細を見る
貸倉庫店舗

新宿町6丁目貸店舗

非常に駐車場の広い貸倉庫・店舗物件です トラックと腕の荷捌きもしやすいおすすめ物件 以前はドラッグストアでの使用でした

駐車場有 平屋建
所在地
埼玉県川越市 新宿町6-34-19
交 通
  • 東武東上線 川越 1900m
賃 料
148.00 万円
坪単価
7,981円
坪 数
185.45坪
築 年
1996年3月築
詳細を見る
貸倉庫
駐車場有 事務所付き トイレ(流し)付き 動力付き 高速道路ICから5km
所在地
埼玉県川越市 中台南1-5-1
交 通
  • 西武新宿線 南大塚 徒歩20分
  • 関越自動車道 川越 1.7Km
賃 料
16.00 万円
坪単価
4,023円
坪 数
39.77坪
築 年
1981年10月築
詳細を見る
貸倉庫

Yoshiken K2 103

営業所や事務所等に最適!

駐車場有 駅徒歩15分以内
所在地
埼玉県東松山市 箭弓町1-5202-1
交 通
  • 東武東上線 東松山 徒歩4分
賃 料
18.15 万円
坪単価
16,191円
坪 数
11.21坪
築 年
2025年12月築
詳細を見る
貸倉庫

Yoshiken K2 102

営業所や事務所に最適!

駅徒歩15分以内
所在地
埼玉県東松山市 箭弓町1-5202-1
交 通
  • 東武東上線 東松山 徒歩4分
賃 料
18.70 万円
坪単価
15,056円
坪 数
12.42坪
築 年
2025年12月築
詳細を見る
貸倉庫

Yoshiken K2 101

営業所や事務所等に最適!

駅徒歩15分以内
所在地
埼玉県東松山市 箭弓町1-5202-1
交 通
  • 東武東上線 東松山 徒歩4分
賃 料
18.70 万円
坪単価
16,519円
坪 数
11.32坪
築 年
2025年12月築
詳細を見る
貸倉庫

藤倉貸倉庫

天井高5.7m~7m!準工業地域内の平屋建貸倉庫☆国道16号まで至近

駐車場有 トイレ(流し)付き 動力付き 天井高5m以上 シャッター高3m以上 平屋建 高速道路ICから5km 準工業・工業・工業専用地域
所在地
埼玉県川越市 藤倉2-12-19
交 通
  • 西武新宿線 新狭山 徒歩20分
  • 関越自動車道 川越 2.5Km
賃 料
33.00 万円
坪単価
7,118円
坪 数
46.36坪
築 年
1993年3月築
詳細を見る
貸倉庫店舗

的場貸店舗

駐車場複数台有の平屋建物件です!

駐車場有 事務所付き トイレ(流し)付き 動力付き 駐車場5台以上 前面道路6m以上 平屋建
所在地
埼玉県川越市 大字的場243-7
交 通
  • JR川越線 的場 徒歩18分
賃 料
38.50 万円
坪単価
7,971円
坪 数
48.30坪
築 年
2003年09月築
詳細を見る
貸倉庫事務所

HOTビル1階

京浜東北線北浦和駅徒歩1分  1階路面物件が出ました。

トイレ(流し)付き 駅徒歩15分以内
所在地
埼玉県さいたま市浦和区 北浦和4-1-7
交 通
  • JR京浜東北 北浦和 徒歩1分
賃 料
36.30 万円
坪単価
47,021円
坪 数
7.72坪
築 年
2019年05月築
詳細を見る
貸工場

上富貸工場

駐車場3台分以上 音の出る業種可能

駐車場有 事務所付き トイレ(流し)付き 駐車場5台以上 平屋建 高速道路ICから5km
所在地
埼玉県入間郡三芳町 大字上富87-4
交 通
  • 東武東上線 ふじみ野 3000m
  • 関越道 三芳スマート 0.6Km
賃 料
49.50 万円
坪単価
4,146円
坪 数
119.39坪
築 年
1989年8月築
詳細を見る
貸倉庫

かし野台貸倉庫

トイレ,プロパンガス,動力あり

駐車場有 事務所付き トイレ(流し)付き 動力付き 平屋建 高速道路ICから5km 準工業・工業・工業専用地域
所在地
埼玉県川越市 かし野台2-21-2
交 通
  • 西武新宿線 南大塚 徒歩19分
  • 関越自動車道 川越 2.4Km
賃 料
99.00 万円
坪単価
3,962円
坪 数
249.89坪
築 年
1971年11月築
詳細を見る
貸倉庫

鴻巣倉庫 2号棟

2階建て倉庫 750坪 大型車・トレーラー、搬入可

所在地
埼玉県鴻巣市 上生出塚715
交 通
  • JR高崎線 鴻巣 徒歩29分
賃 料
247.50 万円
坪単価
3,292円
坪 数
751.87坪
築 年
1980年09月築
詳細を見る
1823件中 1〜30件を表示

埼玉県の【貸倉庫・貸工場】の物件について
お電話でご相談されたい方はこちら

045-595-9518
受付時間 9:00 - 21:00

埼玉県の貸倉庫・貸工場をお探しなら、さがそーこ

埼玉県の貸し倉庫・貸し工場をお探しなら、貸倉庫・貸工場専門のさがそーこ(当サイト)にお任せください。
さがそーこ(当サイト)では、どういった状況のお客様でもご納得のうえ、ご契約・ご入居頂けるよう、お客様のご要望やご不安・疑問点などをヒヤリングさせて頂き、限りなく理想に近い物件のご提案を目指していきます。
また、貸倉庫・貸工場の市場は他の賃貸市場に比べて物件数が限りなく少ないのが現実です。
その中で、どうすればより良い貸し倉庫・貸し工場物件をお客様が確保することが出来るのか、状況に合わせてスピーディーにご提案をさせて頂きます。
対応エリアに関しては、都心に近くアクセス性が良い人気エリアである1都3県(東京・神奈川・埼玉・千葉)を中心に北関東エリア(茨城・栃木・群馬)、 東海エリア(山梨・静岡・愛知)にも対応しております。
さがそーこでは、最新・最多の埼玉県の賃貸倉庫・賃貸工場の物件情報を最速でご紹介致しております。 是非、お気軽にご相談ください。

近くの市・区の坪単価一覧

さいたま市西区 3,500円〜6,000円 さいたま市北区 3,500円〜6,000円 さいたま市見沼区 3,500円〜5,000円 さいたま市中央区 3,500円〜6,000円 さいたま市浦和区 4,000円〜6,000円 さいたま市南区 3,500円〜5,000円 さいたま市緑区 3,500円〜5,000円 川越市 4,000円〜5,000円 熊谷市 3,000円〜4,500円 川口市 4,500円〜6,500円 行田市 3,000円〜4,500円 所沢市 4,500円〜5,500円 飯能市 1,500円〜2,500円 加須市 3,500円〜4,500円 本庄市 2,500円〜3,500円 東松山市 2,500円〜3,500円 春日部市 4,000円〜5,500円 狭山市 2,500円〜3,500円 羽生市 1,500円〜2,500円 鴻巣市 3,500円〜4,500円 深谷市 2,000円〜3,000円 上尾市 3,000円〜5,000円 草加市 4,000円〜5,500円 越谷市 3,500円〜5,500円 蕨市 3,000円〜4,500円 戸田市 4,500円〜6,000円 入間市 3,500円〜4,500円 朝霞市 3,000円〜4,500円 志木市 3,000円〜4,500円 新座市 4,500円〜6,000円 桶川市 3,000円〜4,000円 久喜市 3,000円〜4,500円 北本市 3,000円〜4,500円 八潮市 4,000円〜5,500円 富士見市 2,000円〜3,000円 三郷市 4,500円〜6,000円 蓮田市 3,000円〜5,000円 坂戸市 3,500円〜4,500円 幸手市 2,500円〜3,500円 鶴ヶ島市 3,500円〜4,500円 日高市 2,500円〜3,500円 吉川市 3,000円〜4,500円 ふじみ野市 3,000円〜4,500円 白岡市 3,000円〜4,500円 北足立郡伊奈町 3,000円〜4,500円 入間郡三芳町 4,000円〜5,000円 入間郡毛呂山町 2,500円〜3,500円 比企郡滑川町 2,500円〜3,500円 比企郡小川町 2,500円〜3,500円 比企郡川島町 3,500円〜4,500円 比企郡吉見町 3,500円〜4,500円 比企郡鳩山町 2,500円〜3,500円 比企郡ときがわ町 2,500円〜3,500円 児玉郡美里町 2,500円〜3,500円 児玉郡神川町 2,500円〜3,500円 児玉郡上里町 2,500円〜3,500円 大里郡寄居町 2,500円〜3,500円 南埼玉郡宮代町 2,500円〜3,500円 北葛飾郡杉戸町 3,500円〜5,000円 北葛飾郡松伏町 3,000円〜4,500円 和光市 3,000円〜4,500円 さいたま市岩槻区 4,000円〜5,000円 さいたま市桜区 4,000円〜6,000円 さいたま市大宮区 3,500円〜6,000円 比企郡嵐山町 3,500円〜4,500円 秩父市 1,500円〜2,500円 入間郡越生町 2,500円〜3,500円 秩父郡横瀬町 2,500円〜3,500円 秩父郡皆野町 2,500円〜3,500円 秩父郡長瀞町 2,500円〜3,500円 秩父郡東秩父村 2,500円〜3,500円 秩父郡小鹿野町 2,500円〜3,500円
候補リスト 閲覧履歴
メールする 電話する 物件検索