【貸倉庫・貸工場】の検索結果

貸倉庫は資機材や消費在庫、車両等の保管、梱包作業等の軽作業場としてご利用いただけます。貸工場は騒音・汚臭・振動など倉庫では対応できない作業や保管物も可能な場合が多いです。貸工場として利用できるという事は、貸倉庫としても利用が可能ですので、ご希望の条件に合う物件を窓口を広げて検索することが可能です。

もっと見る
物件検索
並び順
6367件中 1〜30件を表示
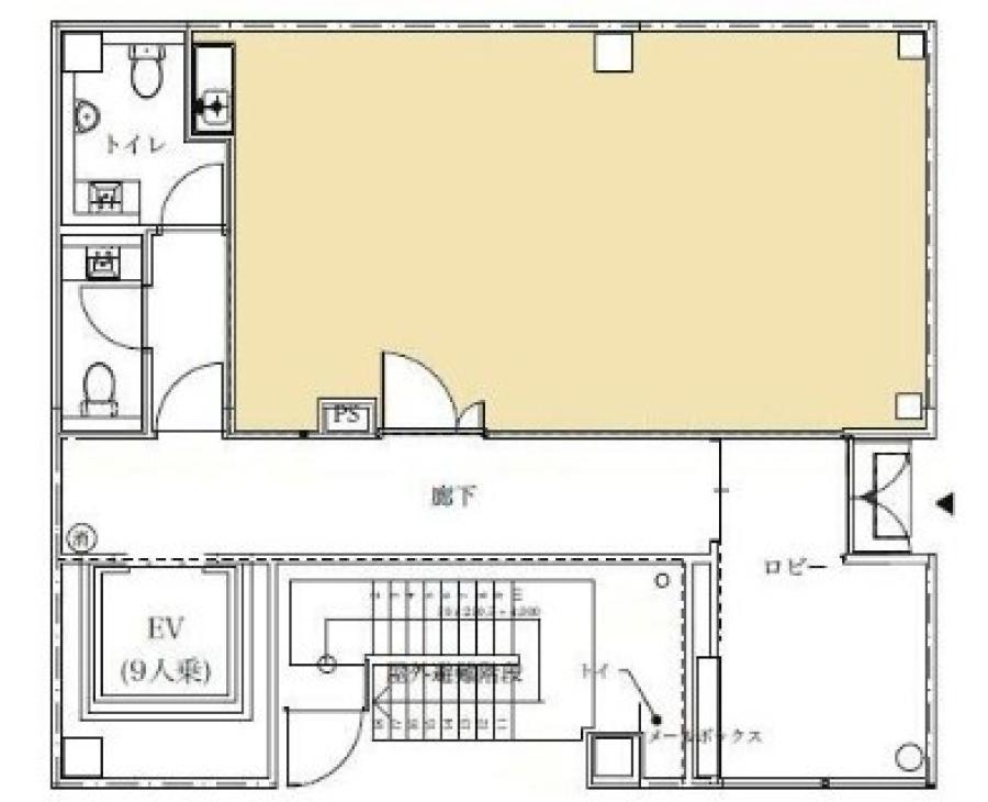
貸倉庫

西浦貸倉庫

■天井高:1階6.4m ■エレベーター:積載3.5t 大型トラック搬入可

トイレ(流し)付き 大型車両出入可能 天井高5m以上 シャッター高3m以上 駅徒歩15分以内 準工業・工業・工業専用地域
所在地
千葉県船橋市 西浦2-8-4
交 通
  • JR京葉線 二俣新町 徒歩12分
賃 料
394.54 万円
坪単価
5,280円
坪 数
747.23坪
築 年
1991年05月築
詳細を見る
貸倉庫

シュエットR

個人事業主の方におすすめ♪保証人不要,角部屋

事務所付き トイレ(流し)付き 駅徒歩15分以内
所在地
東京都中野区 南台2-5-4
交 通
  • 京王線 幡ヶ谷 徒歩11分
賃 料
22.00 万円
坪単価
17,530円
坪 数
12.55坪
築 年
2020年12月築
詳細を見る
貸工場貸倉庫

山口工場・倉庫

☆2階事務所使用

駐車場有 事務所付き トイレ(流し)付き 駅徒歩15分以内
所在地
埼玉県所沢市 大字山口1135-2
交 通
  • 西武鉄道狭山線 下山口 徒歩8分
賃 料
33.00 万円
坪単価
1,189円
坪 数
277.62坪
築 年
1963年03月築
詳細を見る
貸倉庫

チョウシュンタワー1F

営業所や事務所に最適!

トイレ(流し)付き 駅徒歩15分以内
所在地
愛知県刈谷市 若松町1-141-14
交 通
  • 名鉄三河線 刈谷 徒歩4分
賃 料
22.19 万円
坪単価
17,555円
坪 数
12.64坪
築 年
2020年01月築
詳細を見る
貸倉庫店舗
駐車場有 トイレ(流し)付き
所在地
愛知県刈谷市 高須町1-1-3
交 通
  • 名鉄三河線 刈谷 徒歩21分
賃 料
17.60 万円
坪単価
7,454円
坪 数
23.61坪
築 年
1986年11月築
詳細を見る
貸倉庫

武里中野住居付貸工場

前面広々な駐車場3台付の住居付工場物件です!

駐車場有 事務所付き トイレ(流し)付き 前面道路6m以上
所在地
埼玉県春日部市 武里中野768-3
交 通
  • 東武伊勢崎・大師線 武里 徒歩17分
賃 料
44.80 万円
坪単価
4,514円
坪 数
99.25坪
築 年
1989年08月築
詳細を見る
貸倉庫事務所

伊奈町貸事務所

★営業所に最適 駐⾞スペース10台程度

駐車場有 トイレ(流し)付き 動力付き 平屋建
所在地
埼玉県北足立郡伊奈町 小室4403-1
交 通
  • 埼⽟新都市交通 丸⼭ 徒歩16分
賃 料
44.00 万円
坪単価
6,480円
坪 数
67.90坪
築 年
1970年8月築
詳細を見る
貸倉庫

アインス矢作 101

事務所等 各種業種ご相談ください。

所在地
千葉県千葉市中央区 矢作町328-13
交 通
  • 千葉都市モノレール 県庁前 徒歩30分
  • 立会橋 徒歩2分
賃 料
15.00 万円
坪単価
5,693円
坪 数
26.35坪
築 年
1991年03月築
詳細を見る
貸倉庫

ヴェルト千葉中央 1階

新築物件! 業種相談!!

トイレ(流し)付き 駅徒歩15分以内
所在地
千葉県千葉市中央区 本町2-3-17
交 通
  • 京成千葉線 千葉中央 徒歩10分
賃 料
24.53 万円
坪単価
12,234円
坪 数
20.05坪
築 年
2025年01月築
詳細を見る
貸倉庫

トワベール大田中央101

1フロア1テナント,トイレ,給湯,都市ガス,動力あり,エアコン

駐車場有 事務所付き トイレ(流し)付き 駅徒歩15分以内 準工業・工業・工業専用地域
所在地
東京都大田区 中央8-45-6
交 通
  • JR京浜東北・根岸線 蒲田 徒歩14分
賃 料
28.26 万円
坪単価
10,979円
坪 数
25.74坪
築 年
1986年10月築
詳細を見る
貸倉庫

浅野町貸倉庫 B号棟103

工業専用地域、首都高浜川崎ランプ至近

駐車場有 事務所付き トイレ(流し)付き 高速道路ICから5km 駅徒歩15分以内 準工業・工業・工業専用地域
所在地
神奈川県川崎市 川崎区浅野町1-14
交 通
  • JR鶴見線・南武線 浜川崎 徒歩14分
  • 浜町四丁目 徒歩2分
  • 首都高速 浜川崎ランプ 1.2Km
賃 料
44.00 万円
坪単価
15,136円
坪 数
29.07坪
築 年
1970年1月築
詳細を見る
貸倉庫店舗事務所
駐車場有 トイレ(流し)付き 駅徒歩15分以内
所在地
神奈川県藤沢市 長後746-10
交 通
  • 小田急江ノ島線 長後 徒歩3分
賃 料
25.30 万円
坪単価
6,821円
坪 数
37.09坪
築 年
1994年10月築
詳細を見る
貸倉庫

中川2丁目貸家

中川駅徒歩6分の駅近物件 前面風車場も複数台あり使い勝手もいいです!

駐車場有 トイレ(流し)付き 動力付き 駅徒歩15分以内
所在地
神奈川県横浜市都筑区 中川2-6-22
交 通
  • 横浜市ブルーライン 中川 徒歩5分
賃 料
29.80 万円
坪単価
4,723円
坪 数
63.10坪
築 年
1991年01月築
詳細を見る
貸倉庫事務所

富田ビル 101

鶯谷徒歩6分の貸店舗物件 以前は美容院として使用されていました

トイレ(流し)付き 駅徒歩15分以内
所在地
東京都荒川区 東日暮里5-11-4
交 通
  • JR山手線 鶯谷 徒歩6分
賃 料
22.00 万円
坪単価
7,888円
坪 数
27.89坪
築 年
1972年10月築
詳細を見る
貸倉庫

常盤町テナント1階

エレベーター

事務所付き 駅徒歩15分以内
所在地
神奈川県横浜市中区 常盤町4-42-3
交 通
  • 横浜市ブルーライン 関内 徒歩1分
賃 料
30.40 万円
坪単価
41,473円
坪 数
7.33坪
築 年
2020年12月築
詳細を見る
貸倉庫

若泉物流倉庫

ロードサイド施設充実の国道17号線沿い。交通利便性に優れた立地

駐車場有 事務所付き トイレ(流し)付き 大型車両出入可能 駐車場5台以上 前面道路6m以上 高速道路ICから5km 準工業・工業・工業専用地域
所在地
埼玉県本庄市 若泉3-311-2他
交 通
  • JR高崎線 本庄 徒歩18分
  • 関越自動車道 本庄児玉 4.7Km
賃 料
186.00 万円
坪単価
12,565円
坪 数
148.03坪
築 年
2025年11月築
詳細を見る
貸倉庫

持田貸倉庫

国道17号線沿いの準工業地域の物件

トイレ(流し)付き 平屋建 駅徒歩15分以内 準工業・工業・工業専用地域
所在地
埼玉県行田市 持田2-3-13
交 通
  • 秩父鉄道本線 持田 徒歩10分
賃 料
27.50 万円
坪単価
2,750円
坪 数
100.00坪
築 年
1990年05月築
詳細を見る
貸倉庫店舗

今井貸店舗

★サンロード沿い にぎやかな商店街!★内装スケルトン 思いのままに造作できます!

事務所付き トイレ(流し)付き 駅徒歩15分以内
所在地
東京都江東区 大島6-24-5
交 通
  • 東京都新宿線 大島 徒歩5分
賃 料
38.50 万円
坪単価
12,911円
坪 数
29.82坪
築 年
1981年8月築
詳細を見る
貸倉庫

二丁目69倉庫

貨物リフト3トン  事務所内トイレあり

駐車場有 事務所付き トイレ(流し)付き 大型車両出入可能 リフト付き 準工業・工業・工業専用地域
所在地
埼玉県八潮市 大字二丁目1103-1
交 通
  • つくばエクスプレス 八潮 徒歩22分
賃 料
178.84 万円
坪単価
4,941円
坪 数
361.93坪
築 年
1991年03月築
詳細を見る
貸工場

厚木84

★129号線沿いの貸工場!準工業地域で工場・倉庫・営業所に最適!!

トイレ(流し)付き 準工業・工業・工業専用地域
所在地
神奈川県厚木市 酒井3184
交 通
  • ⼩⽥急⼩⽥原線 愛甲⽯⽥ 徒歩24分
賃 料
210.10 万円
坪単価
5,490円
坪 数
382.67坪
築 年
1990年2月築
詳細を見る
貸倉庫事務所

イマス山吹町ビル

レイアウト効率の高い長方形のオフィスビル

事務所付き トイレ(流し)付き 駅徒歩15分以内
所在地
東京都新宿区 山吹町353-3
交 通
  • 東京メトロ有楽町線 江戸川橋 徒歩4分
賃 料
40.91 万円
坪単価
14,274円
坪 数
28.66坪
築 年
1989年12月築
詳細を見る
貸倉庫

パレス高桑

室内は、とても明るいです

トイレ(流し)付き 駅徒歩15分以内
所在地
東京都稲城市 大丸1070-36
交 通
  • JR南武線 南多摩 徒歩4分
賃 料
22.00 万円
坪単価
8,501円
坪 数
25.88坪
築 年
1999年07月築
詳細を見る
貸倉庫店舗

花神店舗

1F部分の貸店舗・事務所物件 搬入出もしやすい物件です 以前は居酒屋として使用されていました

トイレ(流し)付き
所在地
千葉県市川市 国分2-11-17
交 通
  • JR総武本線 市川 徒歩24分
  • 国分角 徒歩1分
賃 料
17.00 万円
坪単価
11,341円
坪 数
14.99坪
築 年
1978年04月築
詳細を見る
貸倉庫

越谷1

★数少ない平屋物件 ★広めの駐車場有の倉庫 ★東北道「浦和IC」から7.8km

トイレ(流し)付き 平屋建
所在地
埼玉県越谷市 花田2-5-2
交 通
  • 東武伊勢崎・⼤師線 北越⾕ 徒歩29分
賃 料
94.18 万円
坪単価
4,941円
坪 数
190.60坪
築 年
1993年2月築
詳細を見る
貸倉庫

大字上富貸倉庫

IC至近の敷地広々な2階建て倉庫!

駐車場有 トイレ(流し)付き 前面道路6m以上 高速道路ICから5km
所在地
埼玉県入間郡三芳町 大字上富2099-2
交 通
  • 東武東上線 ふじみ野 3000m
  • 関越自動車道 川越 5.0Km
賃 料
236.70 万円
坪単価
3,860円
坪 数
613.17坪
築 年
1996年08月築
詳細を見る
貸倉庫

南永井貸倉庫

希少な4000坪超の貸倉庫物件 以前は書籍等の保管倉庫として使用されていました

トイレ(流し)付き 動力付き
所在地
埼玉県所沢市 大字南永井619-60
交 通
  • JR武蔵野線 東所沢 2700m
賃 料
2,077.76 万円
坪単価
4,620円
坪 数
4,497.33坪
築 年
1990年8月築
詳細を見る
貸倉庫

オプス野田ファクトリー

店舗OK業種相談可 角地 国道16号800m!約16台駐車可!

駐車場有 トイレ(流し)付き 駐車場5台以上 前面道路6m以上
所在地
千葉県野田市 中里423
交 通
  • 東武野田線 川間 2650m
  • 川間小学校入口 徒歩1分
賃 料
151.00 万円
坪単価
6,591円
坪 数
229.09坪
築 年
1970年01月築
詳細を見る
貸倉庫

ネクサス村上102

★国道16号沿い前面窓ガラスの路面店!

駐車場有 トイレ(流し)付き 駅徒歩15分以内
所在地
千葉県八千代市 村上南3-5
交 通
  • 東葉高速鉄道 村上 徒歩7分
賃 料
42.62 万円
坪単価
13,709円
坪 数
31.09坪
築 年
2000年09月築
詳細を見る
貸倉庫

メース清瀬103

☆駅近の1階☆ 窓も多く、明るい室内です! 業種などお気軽にご相談ください

駅徒歩15分以内
所在地
東京都清瀬市 元町1-1-13
交 通
  • 西武池袋・豊島線 清瀬 徒歩4分
賃 料
24.20 万円
坪単価
11,524円
坪 数
21.00坪
築 年
1990年05月築
詳細を見る
貸倉庫

メース清瀬101

☆駅近の1階店舗・事務所などにオススメです☆ 窓も多く、明るい室内です!

駅徒歩15分以内
所在地
東京都清瀬市 元町1-1-13
交 通
  • 西武池袋・豊島線 清瀬 徒歩4分
賃 料
36.30 万円
坪単価
11,000円
坪 数
33.00坪
築 年
1990年05月築
詳細を見る
6367件中 1〜30件を表示
候補リスト 閲覧履歴
メールする 電話する 物件検索