東京都江戸川区の【貸倉庫】の検索結果

江戸川区は、荒川・江戸川・旧江戸川と東京湾に囲まれた低地に位置し、満潮時には陸地の約7割が平均海水面よりも低くなり「ゼロメートル地帯」とも呼ばれ、浸水被害を受けやすく、その浸水は長期間にわたることが懸念されています。江戸川区では、水害を防ぐためにスーパー堤防の計画・整備を進めています。スーパー堤防と沿川地域を一体的に整備することにより、河川と一体となった新しい空間が形成し、水害に強いまちづくりを行っています。また、ものづくり産業面では、平井・小松川、松江・東小松川・船堀地域を中心に金属製品製造業や生産用機械器具製造業、繊維工業、印刷・同関連業等の事業所が集積し、地場産業を支えてきました。現在では、環状七号や首都高速道路の各線などの道路等の整備により、交通の利便性がさらに向上し、関東各方面と接続しやすく非常に製造や物流の拠点として人気の地域です。

もっと見る
物件検索
並び順
100件中 1〜30件を表示
貸倉庫

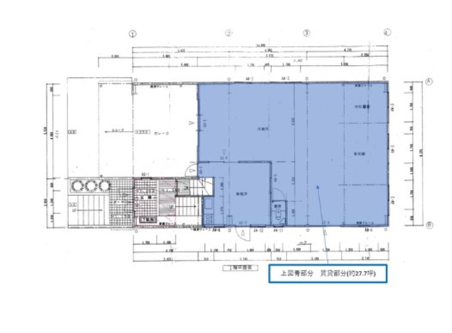
小松川テクノタウン貸倉庫

各種業種用途 24時間365日 稼働相談可能!!

駐車場有 トイレ(流し)付き 動力付き 前面道路6m以上 高速道路ICから5km 駅徒歩15分以内 準工業・工業・工業専用地域
所在地
東京都江戸川区 小松川3-2-1 206
交 通
  • 都営新宿線 東大島 徒歩12分
  • 首都高速 船堀橋 2.3Km
賃 料
19.80 万円
坪単価
13,001円
坪 数
15.23坪
築 年
1991年08月築
詳細を見る
貸倉庫事務所

江戸川貸倉庫・事務所

キュービクル有  大型車進入可能

駐車場有 キュービクル付き 大型車両出入可能 リフト付き
所在地
東京都江戸川区 江戸川6-13-2
交 通
  • 都営新宿線 一之江 徒歩15分
賃 料
249.48 万円
坪単価
6,940円
坪 数
359.47坪
築 年
1993年11月築
詳細を見る
貸倉庫事務所

南小岩8丁目ビル1棟

駅徒歩5分以内の一棟貸し物件 どんな業種もご相談ください。

トイレ(流し)付き 駅徒歩15分以内
所在地
東京都江戸川区 南小岩8-8-6
交 通
  • JR総武・中央緩行線 小岩 徒歩5分
賃 料
40.00 万円
坪単価
7,249円
坪 数
55.18坪
築 年
1974年07月築
詳細を見る
貸倉庫

フジゼン第一倉庫

駅徒歩15分圏内で無料駐車スペースも有る1.2階建て倉庫物件!

駐車場有 トイレ(流し)付き 前面道路6m以上 駅徒歩15分以内
所在地
東京都江戸川区 春江町2-40-10
交 通
  • 都営新宿線 瑞江 徒歩11分
賃 料
112.00 万円
坪単価
6,953円
坪 数
161.07坪
築 年
1987年08月築
詳細を見る
貸倉庫

西瑞江3丁目貸倉庫

40fコンテナ車搬入可能!

トイレ(流し)付き 大型車両出入可能 高速道路ICから5km 駅徒歩15分以内
所在地
東京都江戸川区 西瑞江3-14-12
交 通
  • 都営新宿 瑞江 徒歩10分
  • 首都高速 一之江 1.9Km
賃 料
62.37 万円
坪単価
5,829円
坪 数
107.00坪
築 年
1989年11月築
詳細を見る
貸倉庫

江戸川区臨海町5階一部30坪

大型トラック搬入可,エレベーター,車寄せスペース,荷積みスペース

大型車両出入可能 駅徒歩15分以内 準工業・工業・工業専用地域
所在地
東京都江戸川区 臨海町4-2-2
交 通
  • JR京葉線 葛西臨海公園 徒歩12分
賃 料
24.75 万円
坪単価
8,250円
坪 数
30.00坪
築 年
1989年10月築
詳細を見る
貸倉庫

レジデンス高橋1F、2F

★大通りに面し宣伝効果大! ★集客力に期待大の好立地!

駐車場有 トイレ(流し)付き 駅徒歩15分以内
所在地
東京都江戸川区 江戸川3-18-9
交 通
  • 都営新宿線 瑞江 徒歩12分
賃 料
77.00 万円
坪単価
5,435円
坪 数
141.67坪
築 年
1991年3月築
詳細を見る
貸倉庫

東葛西貸工場・倉庫

住居 事務所付倉庫・作業所です!クレーン3基あり!

クレーン付き 事務所付き トイレ(流し)付き 前面道路6m以上 天井高5m以上
所在地
東京都江戸川区 東葛西1-30-3
交 通
  • 東京メトロ東西線 葛西 徒歩16分
賃 料
85.80 万円
坪単価
5,368円
坪 数
159.85坪
築 年
1966年08月築
詳細を見る
貸倉庫事務所

篠崎町二丁目ビル 1階

篠崎駅2分の駅近物件 事務所等に最適です

駅徒歩15分以内
所在地
東京都江戸川区 篠崎町2-8-4
交 通
  • 都営新宿線 篠崎 徒歩2分
賃 料
35.00 万円
坪単価
23,537円
坪 数
14.87坪
築 年
1993年11月築
詳細を見る
貸倉庫事務所

長谷川ビル 1階

用途により作業場としての使用も相談可能 その他業種等相談ください

トイレ(流し)付き
所在地
東京都江戸川区 上一色1-8-21
交 通
  • JR総武・中央緩行線 新小岩 徒歩23分
  • 上一色中学校前 徒歩1分
賃 料
22.00 万円
坪単価
19,130円
坪 数
11.50坪
築 年
1993年11月築
詳細を見る
貸倉庫店舗

平井二丁目貸店舗B号

平井駅徒歩4分の好立地 人通りも多く貸店舗・貸事務所に最適です

駅徒歩15分以内
所在地
東京都江戸川区 平井2-25
交 通
  • JR総武・中央緩⾏線 平井 徒歩4分
賃 料
17.60 万円
坪単価
9,012円
坪 数
19.53坪
築 年
1955年01月築
詳細を見る
貸倉庫

フリーデンハイム船堀 101

船堀駅徒歩15分 1F部分の貸事務所・貸店舗物件です!

駅徒歩15分以内
所在地
東京都江戸川区 東小松川2-25-7
交 通
  • 都営新宿線 船堀 徒歩15分
賃 料
42.90 万円
坪単価
21,766円
坪 数
19.71坪
築 年
1998年8月築
詳細を見る
貸倉庫

南葛西4丁目貸倉庫

江戸川区内平家倉庫 最高天高約9m

駐車場有
所在地
東京都江戸川区 南葛西4-21-8
交 通
  • JR京葉線 葛西臨海公園 徒歩20分
賃 料
77.00 万円
坪単価
8,830円
坪 数
87.20坪
築 年
1976年04月築
詳細を見る
貸倉庫店舗

江戸川区東小松川1丁目店舗付 住宅

1棟貸し 1階店舗・2階居住スペース

所在地
東京都江戸川区 東小松川1-11-15
交 通
  • 都営新宿線 船堀 徒歩24分
賃 料
36.00 万円
坪単価
6,297円
坪 数
57.17坪
築 年
1951年2月築
詳細を見る
貸倉庫

第2ニューシャトレーマンション 102号室

1階路面角地の駅近物件です 業種・使用用途ご相談可能

駅徒歩15分以内
所在地
東京都江戸川区 篠崎町7-18-8
交 通
  • 都営新宿線 篠崎 徒歩5分
賃 料
17.60 万円
坪単価
13,729円
坪 数
12.82坪
築 年
1985年7月築
詳細を見る
貸倉庫

パルプラザ小松川1号棟 101号室

駅徒歩15圏内で交通の便良し 飲食店も可能です

駐車場有 トイレ(流し)付き 駅徒歩15分以内
所在地
東京都江戸川区 小松川2-4-5
交 通
  • 都営新宿線 東大島 徒歩11分
賃 料
16.00 万円
坪単価
10,667円
坪 数
15.00坪
築 年
1993年3月築
詳細を見る
貸倉庫

メゾン一里塚

2沿線以上利用可能!千葉街道・区役所通り角地の1階貸事務所・店舗

駅徒歩15分以内
所在地
東京都江戸川区 東小岩5-37-18
交 通
  • 京成本線 江戸川 徒歩7分
賃 料
20.90 万円
坪単価
11,182円
坪 数
18.69坪
築 年
1980年11月築
詳細を見る
貸倉庫

アラキウエアハウス 10番区画

大型トラックの乗り入れ可能、荷捌きできるロータリー付き

駐車場有 トイレ(流し)付き 大型車両出入可能
所在地
東京都江戸川区 中央2-3-11
交 通
  • JR総武線 新小岩 1900m
  • 江戸川区役所前 徒歩6分
賃 料
19.36 万円
坪単価
8,784円
坪 数
22.04坪
築 年
1992年4月築
詳細を見る
貸倉庫事務所
駐車場有 トイレ(流し)付き 動力付き 駅徒歩15分以内
所在地
東京都江戸川区 平井7-16-27
交 通
  • JR総武・中央緩行線 平井 徒歩12分
賃 料
25.30 万円
坪単価
10,433円
坪 数
24.25坪
築 年
1986年11月築
詳細を見る
貸倉庫店舗
トイレ(流し)付き 駅徒歩15分以内
所在地
東京都江戸川区 北葛西2-22-12
交 通
  • 都営新宿線 船堀 徒歩15分
賃 料
14.00 万円
坪単価
8,658円
坪 数
16.17坪
築 年
1991年8月築
詳細を見る
貸倉庫
大型車両出入可能 天井高5m以上
所在地
東京都江戸川区 東葛西9-3-2
交 通
  • 東京メトロ東西線 葛西 徒歩29分
賃 料
132.00 万円
坪単価
6,600円
坪 数
200.00坪
築 年
1986年01月築
詳細を見る
貸倉庫店舗
トイレ(流し)付き 駅徒歩15分以内
所在地
東京都江戸川区 西小岩5-13-13
交 通
  • 京成本線 京成⼩岩 徒歩7分
賃 料
39.60 万円
坪単価
6,405円
坪 数
61.83坪
築 年
1973年2月築
詳細を見る
貸倉庫事務所
駅徒歩15分以内
所在地
東京都江戸川区 西小岩1-28-3
交 通
  • JR総武・中央緩行線 小岩 徒歩3分
賃 料
98.26 万円
坪単価
17,572円
坪 数
55.92坪
築 年
1992年02月築
詳細を見る
貸倉庫事務所

米須ビル 1階

住環境が良い注目の南葛西!

駐車場有 前面道路6m以上
所在地
東京都江戸川区 南葛西6-13-5
交 通
  • JR京葉線 葛西臨海公園 徒歩23分
賃 料
29.70 万円
坪単価
8,534円
坪 数
34.80坪
築 年
1991年12月築
詳細を見る
貸倉庫
駅徒歩15分以内
所在地
東京都江戸川区 平井5-20-3
交 通
  • JR総武・中央緩行線 平井 徒歩2分
賃 料
40.70 万円
坪単価
25,186円
坪 数
16.16坪
築 年
2024年03月築
詳細を見る
貸倉庫
トイレ(流し)付き 大型車両出入可能 天井高5m以上 準工業・工業・工業専用地域
所在地
東京都江戸川区 東葛西9-3-2
交 通
  • 東京メトロ東⻄線 葛西 徒歩29分
賃 料
74.80 万円
坪単価
7,480円
坪 数
100.00坪
築 年
1986年1月築
詳細を見る
貸倉庫
所在地
東京都江戸川区 中央2-18-19
交 通
  • JR総武・中央緩行線 新小岩 徒歩28分
  • 大杉小学校 徒歩2分
賃 料
17.00 万円
坪単価
5,844円
坪 数
29.09坪
築 年
1974年12月築
詳細を見る
貸倉庫

ハイライズ吉野 102

駅徒歩1分の好立地

駅徒歩15分以内
所在地
東京都江戸川区 中葛西3-35-14
交 通
  • 東京メトロ東西線 葛西 徒歩1分
賃 料
82.50 万円
坪単価
12,453円
坪 数
66.25坪
築 年
1988年2月築
詳細を見る
貸倉庫
所在地
東京都江戸川区 南篠崎1-25-22
交 通
  • 都営新宿線 瑞江 徒歩18分
賃 料
24.20 万円
坪単価
9,983円
坪 数
24.24坪
築 年
1989年04月築
詳細を見る
貸倉庫
トイレ(流し)付き 駅徒歩15分以内
所在地
東京都江戸川区 西葛西7-21
交 通
  • 東京メトロ東西線 西葛西 徒歩7分
賃 料
93.50 万円
坪単価
13,650円
坪 数
68.50坪
築 年
2000年2月築
詳細を見る
100件中 1〜30件を表示

東京都江戸川区の【貸倉庫】の物件について
お電話でご相談されたい方はこちら

045-595-9518
受付時間 9:00 - 21:00

江戸川区の貸倉庫をお探しなら、さがそーこ

江戸川区の貸し倉庫・貸し工場をお探しなら、貸倉庫・貸工場専門のさがそーこ(当サイト)にお任せください。
さがそーこ(当サイト)では、どういった状況のお客様でもご納得のうえ、ご契約・ご入居頂けるよう、お客様のご要望やご不安・疑問点などをヒヤリングさせて頂き、限りなく理想に近い物件のご提案を目指していきます。
また、貸倉庫・貸工場の市場は他の賃貸市場に比べて物件数が限りなく少ないのが現実です。
その中で、どうすればより良い貸し倉庫・貸し工場物件をお客様が確保することが出来るのか、状況に合わせてスピーディーにご提案をさせて頂きます。
対応エリアに関しては、都心に近くアクセス性が良い人気エリアである1都3県(東京・神奈川・埼玉・千葉)を中心に北関東エリア(茨城・栃木・群馬)、 東海エリア(山梨・静岡・愛知)にも対応しております。
さがそーこでは、最新・最多の江戸川区の賃貸倉庫・賃貸工場の物件情報を最速でご紹介致しております。 是非、お気軽にご相談ください。
候補リスト 閲覧履歴
メールする 電話する 物件検索