貸倉庫事務所
弁天町ビル 一棟
※追加することで、まとめてお問い合わせが可能です
基本情報
- 物件名
- 弁天町ビル 一棟
- 所在地
- 東京都新宿区 弁天町86-3
- 交 通
-
- 都営大江戸線 牛込柳町 徒歩3分
- 賃 料
- 24.90 万円
- 坪単価
- 11,625円
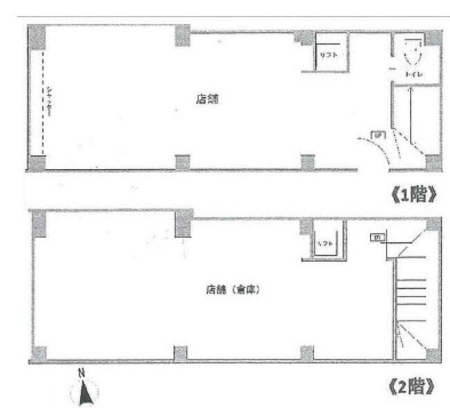
- 建物面積
- 21.42坪
- 構造材質
- 鉄骨造(S)
- 所在階
- 地上2階 建て 1階~2階部分
- 築年月
- 2012年10月
- 前面道路
- 西8.0m 公道 接面5.0m
- 用途地域
- 近隣商業地域
物件番号は18867です
お問い合わせの際は上記番号を
お伝えください。