貸倉庫
北原台貸倉庫
天高 1階5.3m 2階4.1m
※追加することで、まとめてお問い合わせが可能です
天高 1階5.3m 2階4.1m
基本情報
- 物件名
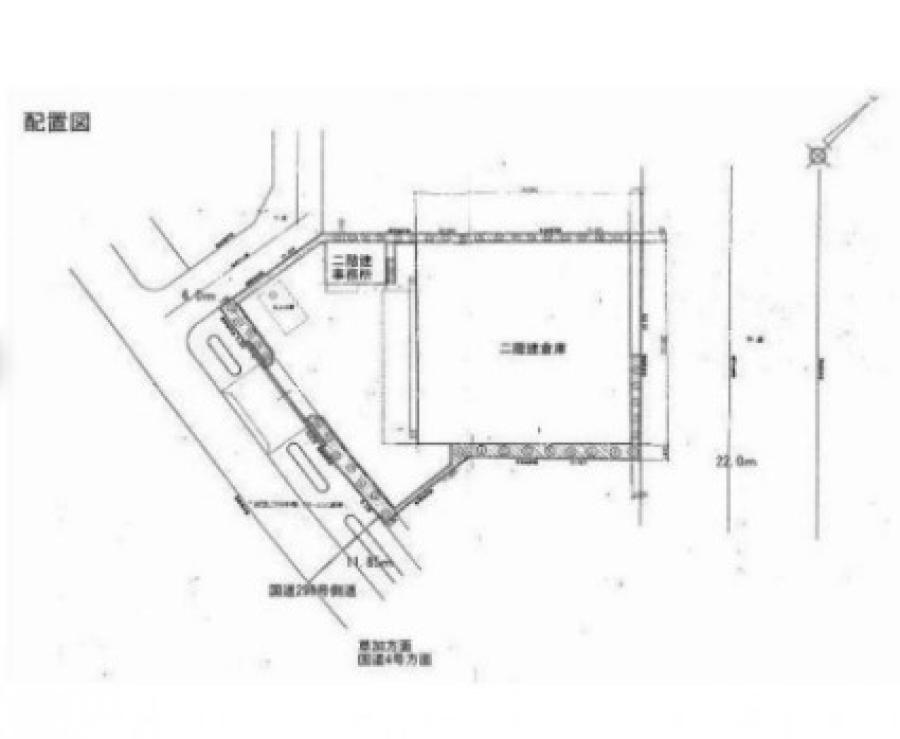
- 北原台貸倉庫
- 所在地
- 埼玉県川口市 北原台3-17-11
- 交 通
-
- JR武蔵野線 東川口 徒歩24分
- 東北自動車道 浦和IC 3.2Km
- 賃 料
- 143.00 万円
- 坪単価
- 4,451円
- 建物面積
- 321.30坪
- 構造材質
- 鉄骨造(S)
- 所在階
- 地上2階 建て 一棟
- 築年月
- 1993年11月
- 駐車場
- 有
- 前面道路
- 用途地域
- 第2種中高層地域
物件番号は36158です
お問い合わせの際は上記番号を
お伝えください。